Skip to main content Skip to page footer

Wall-Touch mit Glasfront WT-G-07s-AP

Multifunktionale Touch-Bedienstelle mit vollflächiger reflexionsminimierter Glasfront zur Montage auf einer UP-Schalterdose. Das Touch-Panel ist ein ISYGLT-BUS-Teilnehmer, daher ist keine Netzwerkinfrastruktur erforderlich. Alle nötigen Daten stehen jederzeit direkt zur Verfügung und selbst nach einem Spannungsausfall ist die Bedienung innerhalb von 2-3 Sekunden wieder möglich.

Kurzer Überblick

  • 7" Touch-Display
  • direkt am BUS
  • schwarze Glasfront
  • AP-Montage mit Design-Abdeckblenden (Standard Edelstahl)
  • hochkant oder quer
  • als Raum-Bedientableau
  • als Einstelltableau
  • als SmartHome-Zentrale

Die ISYGLT Wall-Touch-Glas-Panels WT-G wurden als Bedien-, Control- und Einstell-Panels zum direkten Betrieb am ISYGLT-BUS entwickelt.

Hier wurde besonderer Wert auf extrem hohe Verfügbarkeit, schnellste Betriebsbereitschaft, Ausfallsicherheit und Störsicherheit gelegt.

Die Panels verfügen über ein spezielles Echtzeit-Betriebssystem, was eine Bedienbarkeit der Anlage spätestens 2-3 Sekunden nach dem Einschalten der Spannung ermöglicht. Ebenso sind die Panels absolut unempfindlich gegen versehentliches (beliebig oft) Abschalten/Unterbrechen der Spannung. Dies ist im Baugewerbe gerade während der Installationsarbeiten an der Tagesordnung und für PC-basierende Systeme oft ein Problem. Eine IP-Netzwerkstruktur ist hier also nicht erforderlich.

Die Betriebsspannungsversorgung erfolgt über die ISYGLT-typische 4-polige BUS-Leitung mit den darin mitgeführten 24V und die Kommunikation im RS-485-Industriestandard. Die Adresse wird über die Touch-Oberfläche eingestellt.

Das Design des WT-G wurde bewusst dezent gehalten, um die architektonische Wirkung des Raumes nicht zu stören. Trotzdem fügt es sich als hochwertiges Glas-Panel in die Umgebung ein und ist auch stimmig mit den meisten Schalterprogrammen. Als Varianten stehen 5" in schwarz und weiß sowie 7" mit schwarzer Glasfront als UP-Variante oder als AP-Variante mit gebürsteten Edelstahl-Design-Abdeckblenden zur Verfügung (weitere Farben und Ausführungen der Blenden auf Anfrage).

Über die Bildschirmschoner-Funktion können auch Bilder dargestellt werden. Somit ist das Panel auch ein schöner Bilderrahmen, wenn gerade keine Bedienung erforderlich ist.

Die Gestaltung von Seiten und Funktionen ist mit dem ISYGLT TouchDesigner sehr einfach umsetzbar. Wir haben viele standardisierte Oberflächen entwickelt, wodurch die Programmierung schnell und dadurch kostengünstig erfolgen kann. Das intuitive Bedienkonzept beruht auf unseren mehr als 20 Jahren Erfahrung mit Touch-Panels in der Steuerungstechnik. Natürlich können auch komplett individuelle Seiten mit individuell gestalteten Designs mit dem TouchDesigner entwickelt werden. Die Übertragung der Daten zum Panel erfolgt über eine Micro-SD-Karte.

Die Panels sind hochkant und waagerecht nutzbar. Um auch bei flachen Blickwinkeln eine optimale Darstellung zu bekommen, kann die Ausrichtung des Panels individuell eingestellt werden. Das reflexionsminimierte multitouchfähige Display ist somit für viele Einsatzbereiche optimal geeignet.

Die Helligkeit des Displays kann an die örtlichen Gegebenheiten angepasst und auch intelligent durch externe Sensorik oder Befehle gesteuert werden.

Ein akustischer Signalgeber für Meldungen oder Alarm mit einstellbarer Frequenz ist integriert.

Eine Besonderheit ist noch die Funktion "D-O-T-Switch" (Display-off-Touch-Switch). Damit kann bei ausgeschaltetem Display das Panel mit einer Tastfunktion aktiviert werden. Gleichzeitig wird ein Befehl gesendet, um z.B. das Licht im Raum einzuschalten. Somit kann man praktischerweise auch mal das Licht mit dem Ellenbogen einschalten, wenn man keine Hand frei hat, so wie man es bei normalen Schaltern gewohnt ist.

Anwendungsbeispiele

  • Smart-Home-Zentrale
  • Raumbediengerät zur Lichtsteuerung, Temperatursteuerung, Sonnenschutzsteuerung
  • Konferenzraumtechnik (viele Funktionen für multifunktionale Konferenzräume sind integriert)
  • Störmeldetableau, Überwachungstableau
  • Lichtszenen-Bedien-Panel für Kirchen, Veranstaltungsräume und Museen
  • Einstell- und Control-Panel für Heizung/Klima/Lüftung
  • Bedien-Interface für Aquarium oder andere Anlagen (HMI)
  • Alarm- und Meldetableau
  • Audio-/Multiroom-Steuerung

Beispiele für die Gestaltung unserer Touchpanel WT-G für Smarthome, Gebäudeautomation, Lichtsteuerung uvm.

Elektrotechnische Daten

Betriebsspannung 16V-27V DC
Stromaufnahme max. 176mA, normal 135mA, Standby 65mA (bei 24V DC)
Auflösung 800x480 px
Helligkeit TFT-Display regelbar über integrierten Lichtsensor
Protokoll ISYGLT
Programmierung ProgrammDesigner und TouchDesigner
Speicher Micro-SD für Programmierung und Datensicherung
Anschluss Steckklemme 4-polig, Phoenix PTSM0,5/4-PI-2,5 für Drähte starr 0,25-0,8mm, flexibel 0,2-0,5mm², AWG 42-20;
Betriebstemperatur -10...+50°C
Lagertemperatur -25...+70°C
Luftfeuchte 0...85 % r. F. nicht kondensierend
Schutzart IP40

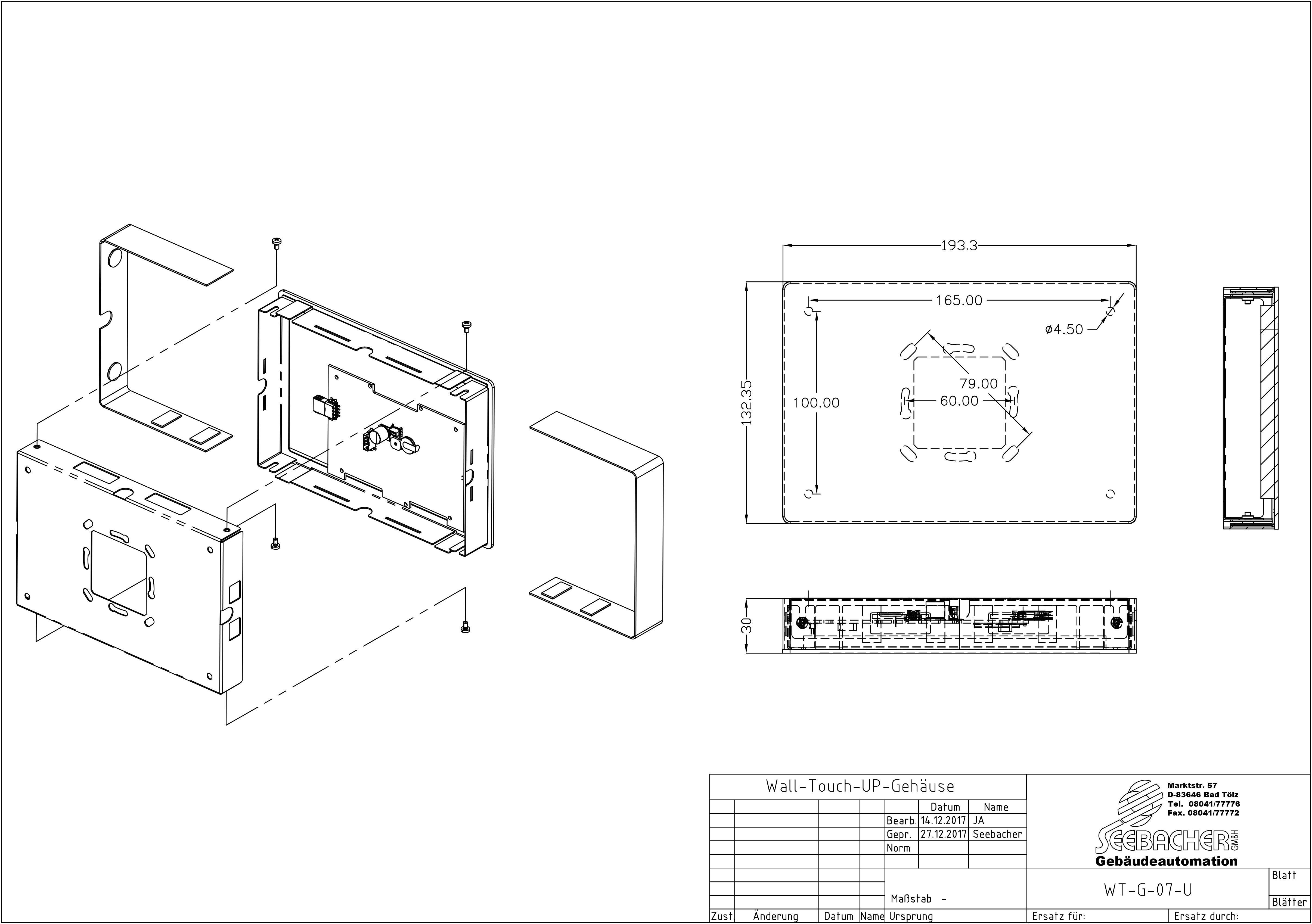
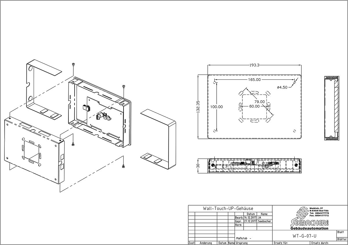
Bauform, Abmessungen, Gewicht

Bauform AP-Montage auf Wand, Möbel, Pult oder Schaltschrank
Abmessungen Panel HxBxT: 193,5mm x 132,5mm x 30,5mm
Gewicht 850g

Bestelldaten und Konformität

Typenbezeichnung WT-G-07s-AP
Artikelnummer 80023401
Fabrikat ISYGLT
Konformität CE

Gebrauchsanweisungen

Technische Zeichnungen

Adressierung


Das Einstellen der BUS-Adresse erfolgt bei den Wall-Touches WT-G im Menü der Touch-Oberfläche. Wie man zu dem Einstelldialog gelangt, hängt davon ab, wo der Programmierer den Link angelegt hat.


Display-Blickwinkel


Die Panel sind hochkant und waagerecht nutzbar. Dies wird in der Projekteinstellung festgelegt. Technologiebedingt haben die Displays eine Blickrichtung, bei der die Polarisierung eine etwas schlechtere Erkennung aus flachen Winkeln bewirkt. Um dies zu umgehen, kann die Darstellung um 180° gedreht werden; das Panel wird auch einfach gedreht eingebaut. Hierzu gibt es einen Dialog, bei dem per grüner Linie auch die optimale Seite für flache/seitliche Betrachtung dargestellt wird.


Software

Für die Programmierung der Funktionen benötigen Sie den ProgrammDesigner. Zur Gestaltung der Touch-Oberfläche und Parametrierung steht der TouchDesigner zur Verfügung.


Anschlussbelegung

4-poliger Stecker

=Ub Betriebsspannung
0V 0V Betriebsspannung
A BUS A (Subnet RS-485)
B BUS B (Subnet RS-485)

Varianten

Type Artikelnummer Beschreibung
WT-G-05w 80023410 Wall-Touch 5" weiß
WT-G-05s 80023400 Wall-Touch 5" schwarz
WT-G-07s-UP 80023402 Wall-Touch 7" schwarz zur Unterputz-Montage
WT-G-07w-UP 80023412 Wall-Touch 7" weiß zur Unterputz-Montage
WT-G-07s-AP 80023401 Wall-Touch 7" schwarz zur Aufputz-Montage
WT-G-07w-AP 80023411 Wall-Touch 7" weiß zur Aufputz-Montage

To top

Neu Sale
WT-G-07s-frontal_a.jpg

WT-G-07s-AP

Art.-Nr.: 80023401

Multifunktionale 7"-Touch-Bedienstelle mit reflexionsminimierter Glasfront zur AP-Montage. Ein Panel für verschiedenste Einsatzzwecke in der Gebäudetechnik mit schwarzer Glasfront und Edelstahl-Seitenblenden.